位于 Ludwigsvorstadt 的美丽屋顶露台公寓
翻译自 DeepL
配置:
方向:
面向内院
楼层:
五楼 - 带电梯
制造年份:
1973
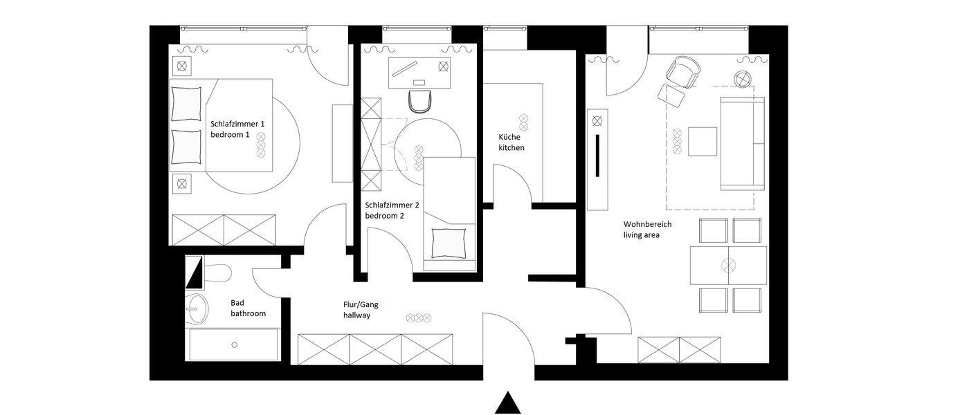
房间:
客厅及餐厅 带沙发套装及餐桌
主卧 带双人床 (180 x 200 厘米)
带单人床的次卧 (90 x 200 厘米)
带浴缸的卫生间
主卧 带双人床 (180 x 200 厘米)
带单人床的次卧 (90 x 200 厘米)
带浴缸的卫生间
地板材料:
镶木地板, 瓷砖地板
家具配置:
好
厨房:
非常好 带用餐区的厨房, 带窗户, 带微波炉的烤箱, 陶瓷炉, 冰箱/冰柜组合, 微波炉, 洗碗机, 提供餐具、厨具和设备
设备详情:
公寓内的洗衣机-烘干机组合
智能电视(互联网连接), 有线电视, 费用包括在租金里
包括床上用品和毛巾
熨斗、熨衣板和吸尘器
智能电视(互联网连接), 有线电视, 费用包括在租金里
包括床上用品和毛巾
熨斗、熨衣板和吸尘器
Internet:
WIFI
统一的互联网费率(最高 50 Mbit/s)
费用包括在租金里
统一的互联网费率(最高 50 Mbit/s)
费用包括在租金里
特别活动:
光线充足的公寓
非常漂亮的屋顶大露台
绿色内院的景色
非常漂亮的屋顶大露台
绿色内院的景色
租金信息:
包括。: 杂费, 电费, 取暖费用, 水, 网费
押金:
2个月租金
广播电视费:
德国公共广播公司的每月电视和广播费应由租户直接支付给ARD ZDF 18,36欧元/月 - 除非另有说明,否则不包括在租金中:
更多信息
房东确认书(WGB)将被签发。
新到慕尼黑的人必须在搬入后两周内到户籍管理部门办理登记手续。为此需要提供房东证明。
物体的地理位置
好的住宅区, 在 Theresienwiese旁, 非常安静
公共交通
周围环境
München Ludwigsvorstadt
购物:
药店, 面包店, 药店, 饮料店, 肉铺, 干洗店, 超市, 自助洗衣店
饮食:
多个吧台, 多个咖啡屋, 多家小酒馆, 多个披萨店, 多个餐厅
能效证书:
建筑年份: 1973
能效证书类型: 能耗证书
主要能源: 燃油
能耗等级: E
Energy consumption value: 151,00 kWh/(m²*a)
能效证书类型: 能耗证书
主要能源: 燃油
能耗等级: E
Energy consumption value: 151,00 kWh/(m²*a)
