Tegernsee 湖畔的稀世珍品:位于 Abwinkl 的高品质乡村别墅群
标识符:
701591
对象类型:
特殊房产
居住面积约:
571.23 m²
制造年份:
1955
使用面积约:
987 m²
土地面积约:
2,533 m²
状态:
现代化
卧室:
10
浴室:
7
客人卫生间:
是的
阳台数量:
4
阳台数量:
8
地窖:
是的
嵌入式厨房:
是的
楼层:
3
地面铺装材料:
瓷砖, 地板
佣金
买方佣金:2.975 %(含增值税)。
主要亮点
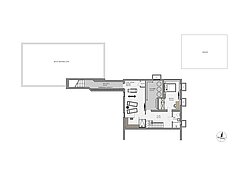
- 乡村别墅组合,包括一座带室外游泳池的现代化乡村别墅和两座小木屋
- 独立单元,完美的扩建备用地
- 采用 OSPA 泳池技术(无氯)的不锈钢室外泳池
描述
这座独一无二的乡间别墅群由三处高品质房产组成,创造了涵盖生活各个阶段的代际生活,同时确保了可持续发展的价值。
宽敞的空间和可供选择的独立单元提供了灵活的使用选择。时尚的室外游泳池凸显了私人度假的特色--是家人和客人的理想之选。
建筑与景观和谐而自信地融为一体。天然材料和柔和的色调主宰了整个景观,从室内到室外流淌着共生的气息。
多个车库也为停车提供了便利。因此,该建筑群在 Abwinkl am Tegernsee 最受欢迎的地段之一,将现代生活的舒适性与长期发展前景相结合。
一号木屋是现代乡村别墅的一半,其特点是房间宽敞。这里有一个非常舒适的起居室和餐厅,配有 Zdovc 公司定制的高品质、设备齐全的工厂厨房,以及一个集成的燃气壁炉。
地下室是一个现代化的健身区,设有桑拿浴室、健身房和健身中心,还有一条地下连廊通往独立的二号木屋。
木屋二号是一个天堂般的亚洲风格绿洲,适合家人和朋友居住。独立的起居区提供了私密性。
室内设计充满现代感和远东风情,让您在日常生活中得到放松和休息。位于东南侧的宽敞休息区为您提供了更多选择。
这座全新设计的乡村别墅是极致奢华的缩影。绝对的独享性在这里占据了中心位置。
宽敞的起居室配有开放式壁炉、带顶露台和日光浴室,是房屋的中心。豪华的餐厅厨房提供最高级别的烹饪舒适度。
室外游泳池是这栋别墅的一大亮点,长 12 米,宽 3 米,令人印象深刻。
(请注意:乡村别墅的内部装修是由 Zdovc 公司设计的,只是对可能的内部设计进行了说明)。
总体而言,乡村别墅的建筑群以其独特的魅力和符合最高标准的氛围给人留下了深刻印象。
请注意:新布置的乡间别墅内部由 Zdovc 公司进行视觉化设计,是可能的室内设计示例。
该建筑群中所有三栋房屋的能源数据:
木屋 I(乡村别墅的一半)
能源证书类型:需求证书
能源消耗特征值: 139.70 kWh/(m²*a)
主要能源:热电联产化石能源
根据 EA 建筑年份:1955
能源效率等级:E
木屋 II(阁楼)
能源证书类型:需求证书
能耗特征值: 80.8 kWh/(m²*a)
主要能源:热电联产化石能源
根据 EA 建筑年份:1955
能源效率等级:C
带室外游泳池的现代乡村别墅
能源证书类型:需求证书
能耗特征值: 86.20 kWh/(m²*a)
主要能源:天然气
根据 EA 建筑年份:1955
能源效率等级:C
宽敞的空间和可供选择的独立单元提供了灵活的使用选择。时尚的室外游泳池凸显了私人度假的特色--是家人和客人的理想之选。
建筑与景观和谐而自信地融为一体。天然材料和柔和的色调主宰了整个景观,从室内到室外流淌着共生的气息。
多个车库也为停车提供了便利。因此,该建筑群在 Abwinkl am Tegernsee 最受欢迎的地段之一,将现代生活的舒适性与长期发展前景相结合。
一号木屋是现代乡村别墅的一半,其特点是房间宽敞。这里有一个非常舒适的起居室和餐厅,配有 Zdovc 公司定制的高品质、设备齐全的工厂厨房,以及一个集成的燃气壁炉。
地下室是一个现代化的健身区,设有桑拿浴室、健身房和健身中心,还有一条地下连廊通往独立的二号木屋。
木屋二号是一个天堂般的亚洲风格绿洲,适合家人和朋友居住。独立的起居区提供了私密性。
室内设计充满现代感和远东风情,让您在日常生活中得到放松和休息。位于东南侧的宽敞休息区为您提供了更多选择。
这座全新设计的乡村别墅是极致奢华的缩影。绝对的独享性在这里占据了中心位置。
宽敞的起居室配有开放式壁炉、带顶露台和日光浴室,是房屋的中心。豪华的餐厅厨房提供最高级别的烹饪舒适度。
室外游泳池是这栋别墅的一大亮点,长 12 米,宽 3 米,令人印象深刻。
(请注意:乡村别墅的内部装修是由 Zdovc 公司设计的,只是对可能的内部设计进行了说明)。
总体而言,乡村别墅的建筑群以其独特的魅力和符合最高标准的氛围给人留下了深刻印象。
请注意:新布置的乡间别墅内部由 Zdovc 公司进行视觉化设计,是可能的室内设计示例。
该建筑群中所有三栋房屋的能源数据:
木屋 I(乡村别墅的一半)
能源证书类型:需求证书
能源消耗特征值: 139.70 kWh/(m²*a)
主要能源:热电联产化石能源
根据 EA 建筑年份:1955
能源效率等级:E
木屋 II(阁楼)
能源证书类型:需求证书
能耗特征值: 80.8 kWh/(m²*a)
主要能源:热电联产化石能源
根据 EA 建筑年份:1955
能源效率等级:C
带室外游泳池的现代乡村别墅
能源证书类型:需求证书
能耗特征值: 86.20 kWh/(m²*a)
主要能源:天然气
根据 EA 建筑年份:1955
能源效率等级:C
设备
以下高品质的装修细节为这套新装修的房产锦上添花:
木屋 I 和木屋 II
- 人字形实木地板
- 部分区域采用现代设计的木板墙*和天花板
- 定制的木质固定装置--部分正面覆盖优质灰色亚麻布*。
- 两个现代化的高品质厨房*,嘉格纳电器,设备齐全
- 房间实木门*或玻璃门,带黑色钢框和型材
- 深灰色电动天井遮阳篷
- 集成照明系统,配有 Occhio 设计灯具
- 玻璃栏杆楼梯,"黑色 "钢扶手,带阶梯照明灯
- 来自 Globo 的石材和陶瓷卫生设施
- 来自 Gessi 的高品质配件
- 玻璃淋浴房
- B&B Italia 的高品质家具和亚麻窗帘,几乎是全套家具的组合
- 新式木窗
- 新屋顶,包括屋顶隔热层
- 燃气冷凝锅炉 + 燃料电池 - 自用发电
乡村别墅
- 由来自 Bayrischzell 的 Zdovc* 公司量身定制的室内设计
- 现代化的高品质厨房*,配有 Lohberger 的专业厨具和
完工
- 所有房间的墙壁和天花板均采用精致的天然灰泥
- 人字形实木地板
- 模压橡木*或玻璃制成的实心房门,配有黑色钢框和型材
- 采用 Occhio 设计灯具的集成照明系统
- Loxon 总线系统,用于控制供暖、照明和泳池。
- 带钢栏杆和阶梯照明的楼梯,"黑色 "钢扶手
- 来自 Globo 的石材和陶瓷卫生设施
- 来自 Gessi 的高品质配件
- 木匠量身定制的衣柜*。
- 新式木窗
- 新屋顶,包括屋顶隔热层
- 光伏发电、空气热泵和燃气冷凝技术--产生热量和电力(12 千瓦)供自用
整个庄园将建筑、设计、传统以及对 Tegernsee 地区的欣赏和热爱完美地结合在一起,打造出一个精致的家园。
* www.zdovc.de
位置
乡间别墅建筑群位于 Abwinkl 区--Bad Wiessee 最炙手可热的地段,地理位置十分优越。沿 Söllbach 溪流步行 5 分钟即可到达 Tegernsee 湖和 Fischerei 小酒馆。
没有任何一个地区能像 Tegernsee - Schliersee 阿尔卑斯地区这样集自然、社会和个人优势于一身。在慕尼黑以南约 50 公里的巴伐利亚阿尔卑斯山麓的 Tegernsee 湖畔,居住着约 26000 名居民。阿尔卑斯山脚下的田园风光将山峦、森林和清澈见底的湖水衬托得美不胜收。
家在 Bad Wiessee:Bad Wiessee 人口 5,198 人,您可以和谐地依偎在文化、自然和 Tegernsee 湖西岸的气候疗养胜地之间。Bad Wiessee 是世界闻名的疗养胜地。无论是文化、健康、运动还是美食,这里都能为您提供多样化的服务。
- 宁静而热门的住宅区
- 靠近湖滨长廊(步行约 7 分钟)
- 邻近 Bad Wiessee 码头(约 6 分钟车程)
- 拥有 18 洞球场的 Bad Wiessee e.V. Tegernsee 高尔夫俱乐部(约 7 分钟车程)
- 附近有购物设施、餐馆、学校、幼儿园和医生(约 10 分钟车程)
- Tegernsee 度假区内丰富多彩的休闲活动
- 步行 3 分钟即可到达公交车站,可通往度假区内的其他四个社区
Bad Wiessee 自 1920 年起就是公认的疗养胜地。主要得益于德国最浓郁的碘硫磺泉,该镇至今仍享有很高的声誉。Montgolfiade 、Seefest 和 Wiesseer Seeadvent 等著名的大型活动,以及巴伐利亚之夜、温泉音乐会或年终音乐会等各种社区活动,让这里的活动丰富多彩。此外,许多优秀的诊所和名医也在 Bad Wiessee 安家落户。门诊治疗、温泉疗养、康复治疗和病人及其亲属的后续治疗,为您提供广泛的医疗服务。
能耗信息
供暖方式:
热电联供系统
能效等级:
E
能源消耗指标:
139.7 kWh/(m²*a)
主要能源:
气体
能源证书类型:
需求证明
制造年份:
1955
其他
洛奇先生以独家授权的方式提供该房产。
作为您在房产销售方面的得力合作伙伴,Mr Lodge 将竭诚为您提供建议和房产相关服务。
请注意,数字展示旨在提供初步概述。所有与房产相关的细节均无保证,完全基于业主提供的信息和资料,我们对此不承担任何责任。
我们很乐意与您面谈,为您提供更多详情。如需了解更多信息或预约看房,请立即致电我们。
翻译自 DeepL