您的联系人
Mavie Datz
Mavie Datz
物业顾问 房地产销售
+49 89 340 823-543
房间
2
居住面积约
44.18 m²
购买价格
€ 399,000,-
佣金
2.975% 含19%增值税。
位置
81369 München

Sendling: 装修一新的高品质两室公寓 - 可供使用


标识符:
70381
对象类型:
一楼公寓
居住面积约:
44.18 m²
制造年份:
1900
住房补贴:
158 €
状态:
现代化
卧室:
1
浴室:
1
地窖:
是的
嵌入式厨房:
是的
楼层:
一楼
地面铺装材料:
瓷砖, 木地板

佣金

买方佣金:2.975%,含 19% 增值税。

主要亮点


  • 适合共用公寓的平面图
  • 装修精美
  • 大型厨房

描述


这套迷人的两室一厅公寓位于一栋保存完好的 1900 年老式建筑内,其适合合租的平面布局和经典的老式建筑特色给人留下了深刻印象。该公寓于 2023 年进行了高标准的翻修:更新了电气设备,铺设了新的供暖管道,墙壁和天花板都粉刷一新。高品质的德国橡木实木地板和意大利大规格瓷砖彰显了现代魅力。此外,带雨淋花洒的现代浴室、新厨房和定制的实木阁楼床与超大储物空间相得益彰。

两间精心设计、可单独使用的房间提供了灵活的使用选择,可用作起居室、卧室或工作区,使这套公寓既适合情侣居住,也适合合租群体。

独立的厨房配备了厨房设备,在功能上与起居室的设计理念不谋而合。入口处还设置了额外的储藏空间,并配有衣帽间。交房时只需部分家具,即可轻松入住,并可进行个性化设计。

此外,还有一个带内置货架系统的地窖。

设备


    • 高雅的部分家具
    • 位于走廊的衣帽间
    • 厨房配备所有必要的电器,包括洗衣烘干机
    • 客厅内的餐桌和椅子
    • 客厅配有 3 人座沙发和抽屉柜
    • 卧室,配有名牌双层床和综合办公区
    • 宽敞的衣柜
    • 现代日光浴室,带雨淋式淋浴
    • 浴室铺设意大利大规格瓷砖
    • 优质橡木镶木地板
    • Bose 音响系统
    • 燃气锅炉供暖,2035 年实现区域供暖
    • 地下室有额外的储藏空间

    该公寓部分家具出售。所示家具为家具的一部分,已包含在购买价格中。

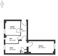
    平面图


    位置


    莱帕特大街(Leipartstrasse)位于 Sendling 市中心。该区位于慕尼黑西南部,因其田园诗般的家庭氛围、绿色环境以及毗邻伊萨尔河和市中心而广受欢迎。该区以大自然为特色,尤其以慕尼黑的海拉布伦动物园和伊萨尔河沿岸的大片绿地而闻名,其中包括广受欢迎的弗劳切尔休闲区。附近的 Westpark 公园和 Sendling 公园也是散步和休闲的理想去处。此外,伊萨尔河附近的攀岩和抱石中心、Südbad 游泳池和高尔夫俱乐部也为您提供了更多休闲娱乐的机会。

    步行 4 分钟即可到达的 "Mittersendling "S-Bahn 站与公共交通网络四通八达,几分钟内即可到达慕尼黑市中心。约 15 分钟即可到达慕尼黑玛丽恩广场。步行不到 5 分钟即可到达 53 和 134 路公交车站。53 路公交车途经 Rotkreuzplatz,终点站位于 Schwabing 的 Münchner Freiheit。乘坐 134 路公交车只需 17 分钟即可到达慕尼黑最大的游乐场特雷西恩广场(Theresienwiese)。哈拉斯 "是 Sendling 中心最重要的地区中心,也是慕尼黑最重要的交通枢纽之一,步行 9 分钟即可到达。在这里,您可以在宽敞的休息区、喷泉边或绿树成荫的树下放松身心,周围是令人印象深刻的世纪之交新艺术和新文艺复兴时期的建筑外墙。哈拉斯周围有许多时尚餐厅和购物场所。降临节期间,这里会举办圣诞集市。

    日常生活所需的购物设施、超市、有机食品和药店、药房、医生和餐馆都近在咫尺。位于哈拉斯(Harras)的 Sendling 每周集市和独特的 "Augustiner Schützengarten "酒馆为周边地区提供了丰富的商品。附近还有幼儿园、托儿所和小学。乘坐公共交通或步行 15 分钟即可轻松到达中学,如但丁中学或 Klenze Gymnasium。

    欢迎来到 Sendling!

    能耗信息


    供暖方式:
    燃气供暖
    能效等级:
    F
    能源消耗指标:
    185.6 kWh/(m²*a)
    主要能源:
    气体
    能源证书类型:
    能耗证书
    制造年份:
    1900

    其他


    这套公寓部分家具齐全,随时可以入住。最近的租金为 1750 欧元(包括水电费和互联网费)。该公寓非常适合作为资本投资或自住。

    作为带家具临时出租的领先机构,Mr. Lodge 乐于为新业主或投资者提供建议、出租和物业相关服务。

    Mr. Lodge 以独家委托方式提供此公寓。

    请注意,数字展示旨在提供初步概览,所有细节均基于业主或客户提供的信息,我们对此不承担任何责任。

    翻译自 DeepL

    索取简介


    Cookie通知
    本网站使用Cookie来个性化內容,自定义和衡量广告并提供安全的体验。点击“全部允许并继续”按钮,即表示您同意通过cookie收集数据。
    Please enable cookies in your browser settings!