赫尔佐格公园套房 | 带画廊和花园的普通套房

Mauerkircherstraße
81679 München
ID 12615
€ 3.190,-
包括: 杂费, 电费, 供暖和热水成本, 网费;
可选: 车库, 清洁

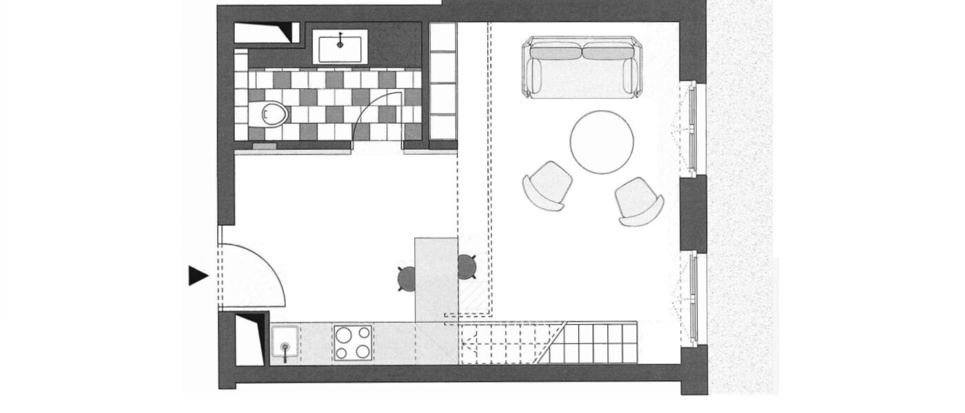
1.5 房间
约 55 平方米
一楼
自何时起可用
01.05.2026 用于 6-24 月份
最低租赁期限
6 月份
人数
适合2人
服务费
没有
限制
仅适合非吸烟者, 不允许携带宠物
已核实:该公寓由Mr. Lodge亲自参观并拍照。

慕尼黑Bogenhausen区的Herzogpark:气派的建筑,优雅的历史。
这里古树环绕,坐落于伊萨尔河、蒙特格拉斯街与Oberföhring街之间。在这般优美的环境中,我们通过Herzogpark套房为您呈现非凡的居住体验。 这里提供由慕尼黑知名建筑事务所steidle architekten精心设计的独特一居室和两居室套房,居住面积约26至90平方米。项目坐落于法国总领事馆原有的公园内。

气派宽敞的入口区域配有高档木门、采用灰泥工艺的墙面装饰、精致的水磨石地面以及优雅的照明。设计现代而优雅。橡木拼花地板经油处理,采用人字形铺设。所有房间均配备地暖。高隔音性能和可控的居住空间通风系统。 所有套房均配备落地窗,营造出格外明亮通透的居住体验。浴室设计典雅,配有风格独特的墙面及地面瓷砖、高品质现代卫浴五金、精致的嵌入式家具以及众多其他精美配置。

在赫尔佐格公园套房中,采用开放式居住理念的两居室阁楼公寓本身就是一处瑰宝。房间和窗户区域不仅横跨两层楼,更在垂直方向上延伸。部分区域层高超过5米,让居住空间在视觉上更显开阔。

非常实用:您可以额外预订每周一次的清洁服务和每两周一次的床单更换服务!

设备

互联网
电视机
吸尘器
洗衣机
干衣机
洗碗机
毛巾
床上用品
吹风机
熨斗
地窖
车库
电梯
阳台
露台

信息

楼层
一楼 - 带电梯
制造年份
2021 拥有挑高空间
房间
客厅/卧室 带沙发套装及餐桌
廊道上的睡眠区 带双人床 (160 x 200 厘米)
带地板淋浴
客卫
地面覆盖材料
人字形拼花地板, 地暖, 陶瓷砖, 地毯地板
家具配置
像新的一样, 高品质, 设计师家具
厨房
开放式厨房,餐桌面向客厅, 陶瓷炉, 冰箱/冰柜组合, 电烤箱, 洗碗机, 烧水壶, 意式浓缩咖啡机, 配备齐全的餐具和厨具
配置详情
公寓内的洗衣机
两台平板电视, 有线电视, 费用包括在租金里
含床单、毛巾和吹风机
包括熨衣板、熨斗和吸尘器
互联网
WIFI
统一的互联网费率(最高 200 Mbit/s)
费用包括在租金里
特别活动
露台
该公寓分为两层, 地下室
停车
可选地下车库(独立空间)-更多详情: Parken in München
每月费用为160,-欧元
费用不包含在租金里
租金信息
包括。: 杂费, 电费, 供暖和热水成本, 网费
可选: 地下车库 (单个车位) 160,- € /月; 每周一次清洁
押金
两个月房租
广播电视费
德国公共广播公司的每月电视和广播费应由租户直接支付给ARD ZDF 18,36欧元/月 - 除非另有说明,否则不包括在租金中: 更多信息
能源证书
建筑年份: 2020
能效证书类型: 需求证明
主要能源: 热电联产再生, 化石燃料联合热电联产
能耗等级: B
最终能耗: 66,60 kWh/(m²*a)
Sara Vaerini

Sara Vaerini

租房顾问部组长

还没有找到合适的公寓吗?

我們的租賃團隊很樂意為您提供搜尋協助。請致電 +49 89 3408 230 或填寫我們的搜尋查詢表。我們將盡快與您聯繫。此外,我們也提供週六預約服務。

提出搜索请求

物体的地理位置

Mauerkircherstraße

München Herzogpark

  • 高档住宅区
  • 伊萨河 Isar附近, 靠近英国花园
  • 约 2,8 km 东北方向 从慕尼黑市中心出发
更多关于周边环境的信息
公交车
线路 187, 车站 Redwitzstraße (2 分钟 步行)
线路 59, 车站 Herzogpark (8 分钟 步行)
线路 188 和 189, 车站 Isarring (5 分钟 步行)

类似公寓

越层公寓 与 1.5 房间 | 慕尼黑-Herzogpark | 12618
立即生效 用于 6-24 月份
1.5 房间
45 平方米
慕尼黑-Herzogpark
2,610
每月欧元
越层公寓 与 1.5 房间 | 慕尼黑-Herzogpark | 12522
立即生效 用于 6-24 月份
1.5 房间
70 平方米
慕尼黑-Herzogpark
3,500
每月欧元
公寓 与 3.5 房间 | 慕尼黑-Herzogpark | 12265
01.05.2026 用于 6-24 月份
3.5 房间
150 平方米
慕尼黑-Herzogpark
4,500
每月欧元
公寓 与 3 房间 | 慕尼黑-Bogenhausen | 11149
360°
立即生效 用于 6-24 月份
3 房间
109 平方米
慕尼黑-Bogenhausen
2,980
每月欧元
公寓 与 1 房间 | 慕尼黑-Herzogpark | 12567
01.06.2026 用于 6-24 月份
1 房间
30 平方米
慕尼黑-Herzogpark
1,990
每月欧元
Cookie通知
本网站使用Cookie来个性化內容,自定义和衡量广告并提供安全的体验。点击“全部允许并继续”按钮,即表示您同意通过cookie收集数据。
Please enable cookies in your browser settings!